MitsuStyle MitsuStyle

Go Back   MitsuStyle > Tech > Tuning/Electrical

Reply
 
Thread Tools Display Modes
Old 12-16-2007   #1
JET
Is funding Exxon.
 
JET's Avatar
 

Join Date: Oct 2003
Location: Ham Lake
Drives: like a bat outta hell!
Posts: 7,983
Send a message via AIM to JET Send a message via Yahoo to JET
2g wiper HELP!

I have my 2g ready to go to a new home, but the damn wipers don't work. I have power on one of the plugs going to the motor and I have a ground. The motor spins until the part of the cam is in place to stop the wipers, but they don't start again. If I turn the cam and put the wiper motor cover back on, the wipers go one time, then stop. I can't seem to get any power to come in through any of the other 3 blue wires. I believe power has to come in through one of these to start the wipers, but I am not positive.

I don't have a 95-96 manual and the one online doesn't have this section in it. Does anyone know where the relay is? Is in in the column like a 1g? The other possibility seems to be that the switch is bad on the stalk.

Stupid friggin' wipers...
__________________
Is burning corn and stayin' warm!

My motorcycle is stock and reliable, my Talon is neither!
JET is offline   Reply With Quote
Old 12-16-2007   #2
blageo23
AWD4G64
 
blageo23's Avatar
 

Join Date: Jun 2004
Location: Shoreview, MN
Posts: 2,286
Send a message via AIM to blageo23
Re: 2g wiper HELP!

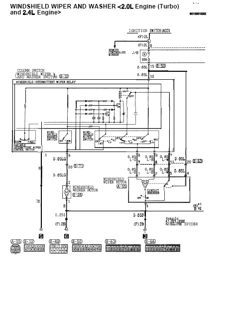
I have the CD manual. The 95-96 didnt have anything but this is from the 97-99(should be the same or at least give you a good Idea). Hope this helps you out!
Attached Images
File Type: bmp Wipers.bmp (900.1 KB, 242 views)
blageo23 is offline   Reply With Quote
Old 12-16-2007   #3
JET
Is funding Exxon.
 
JET's Avatar
 

Join Date: Oct 2003
Location: Ham Lake
Drives: like a bat outta hell!
Posts: 7,983
Send a message via AIM to JET Send a message via Yahoo to JET
Re: 2g wiper HELP!

Do you have the section where they explain how to take it out? I just don't know where it is in a 2g. In a 1g it is in the steering column, but I really don't want to take that apart if it isn't in there. Thanks for the help so far!

Anyone have a 2g electrical manual I can borrow for a bit?
__________________
Is burning corn and stayin' warm!

My motorcycle is stock and reliable, my Talon is neither!

Last edited by JET; 12-16-2007 at 12:14 PM..
JET is offline   Reply With Quote
Old 12-16-2007   #4
JET
Is funding Exxon.
 
JET's Avatar
 

Join Date: Oct 2003
Location: Ham Lake
Drives: like a bat outta hell!
Posts: 7,983
Send a message via AIM to JET Send a message via Yahoo to JET
Re: 2g wiper HELP!

Got it fixed!
__________________
Is burning corn and stayin' warm!

My motorcycle is stock and reliable, my Talon is neither!
JET is offline   Reply With Quote
Old 12-17-2007   #5
TheBlizzard
 
TheBlizzard's Avatar
 

Join Date: Oct 2003
Location: Red Wing, MN
Drives: Too Many
Posts: 3,184
Send a message via AIM to TheBlizzard Send a message via MSN to TheBlizzard
Re: 2g wiper HELP!

Well what was it so this tech thread can be complete?
TheBlizzard is offline   Reply With Quote
Old 12-17-2007   #6
Matt D.
Shit Rocket Pilot
 
Matt D.'s Avatar
 

Join Date: Oct 2003
Location: Shoreview, MN
Drives: 2003 Evolution VIII
Posts: 7,752
Send a message via ICQ to Matt D. Send a message via AIM to Matt D. Send a message via MSN to Matt D. Send a message via Yahoo to Matt D.
Re: 2g wiper HELP!

Quote:
Originally Posted by TheBlizzard View Post
Well what was it so this tech thread can be complete?
It's a secret!
__________________
"If everything seems under control, you're just not going fast enough." -Mario Andretti


03 Mitsubishi Lancer Evolution VIII
Quote:
Originally Posted by Tachyon View Post
Every minute you spend in your Evo, not in boost, is a minute of your life you'll never get back.
Matt D. is offline   Reply With Quote
Old 12-17-2007   #7
JET
Is funding Exxon.
 
JET's Avatar
 

Join Date: Oct 2003
Location: Ham Lake
Drives: like a bat outta hell!
Posts: 7,983
Send a message via AIM to JET Send a message via Yahoo to JET
Re: 2g wiper HELP!

Just a bad connection. I am not sure exactly what it was. They just started working after I was messing with them. I did replace the tail light fuse in the front fuse box, but that shouldn't have anything to do with it.
__________________
Is burning corn and stayin' warm!

My motorcycle is stock and reliable, my Talon is neither!
JET is offline   Reply With Quote
Reply


Posting Rules
You may not post new threads
You may not post replies
You may not post attachments
You may not edit your posts

BB code is On
Smilies are On
[IMG] code is On
HTML code is Off



All times are GMT -5. The time now is 02:08 PM.


Powered by vBulletin® Version 3.8.4
Copyright ©2000 - 2026, Jelsoft Enterprises Ltd.